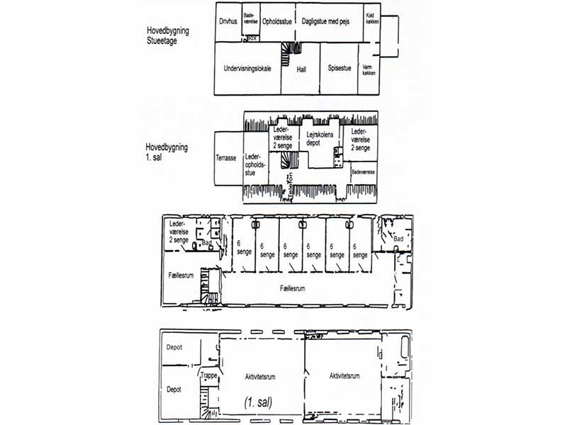
Hulemosegård er indrettet som lejrskole med 36 faste sengepladser fordelt på 6 elevværelser samt 3 lederværelser med i alt 6 senge. Hulemosegård er meget benyttet af både elever og forældre fra kommunens skoler, børnehaver, idrætsforeninger, skolefritidsordninger og andet. Lokaliteterne er også velegnede til afholdelse af mindre kurser samt drama, teater, filmoptagelser, musik og folkedans.

Beliggenheden
Hulemosegård er beliggende på Kalvehavevej 6, Nyråd ved Vordingborg i et naturskønt område tæt ved skov og strand.
Find Donnemose lejrskole på et kort og få kørselsvejledningerne med på vejen.
På Hulemosegård findes der:
- 6 Køjerum med plads til 36 personer
- 3 Dobbeltværelser
- Undervisningslokaler
- Køkken med service til 60 personer
- Spise- og opholdsstuer
- 2 store aktivitetsrum på hver ca. 100 m2
- Overhead
- Lysbilledapparat
- TV
- DVD-afspiller
- Stereoanlæg (CD-afspiller)
- Kopimaskine
- Bordtennisborde (bordtennisbat og bolde medbringes)
- En cykel med anhænger
- En "Long John"
- Toiletpapir
- Viskestykker
- Karklude
- Rengøringsmidler
- Opvaskemaskine
- Værdiboks
- Mønttelefon
Medbring selv:
Der anbefales et tykt tæppe eller lagen til at lægge på madrassen. Det tilrådes at reservere plads i god tid. Der kan lånes løse madrasser. Rullemadrasser til elevværelserne kan lånes til voksengrupper, men skal bestilles i forvejen hos lejrskolelederen.
- Sengelinned
- Sovepose eller dyne
- Hovedpude
Læs vores "praktiske vink" for Hulemosegård og/eller Læs vores "ordensregler" for Hulemosegård
Du kan se ledige tider samt booke her på siden.






















